杭州砚一设计事务所(杭州砚一装饰工程有限公司)原班人马创立于2012年,创立之初是以商业空间施工为核心业务板块,专业从事办公、餐饮、酒店、会所等商业空间施工服务。施工管理中采取“内管管理制度”人工、材料、强弱电、暖通由公司内部统一消化及分配,以“谢绝外包”在业内赢得良好口碑,服务施工过多家上市公司及企业单位。
电话:19975394675
传真:19975394675
邮箱:583709343@qq.com
地址:杭州市萧山区钱江世纪城博地中心B座30层
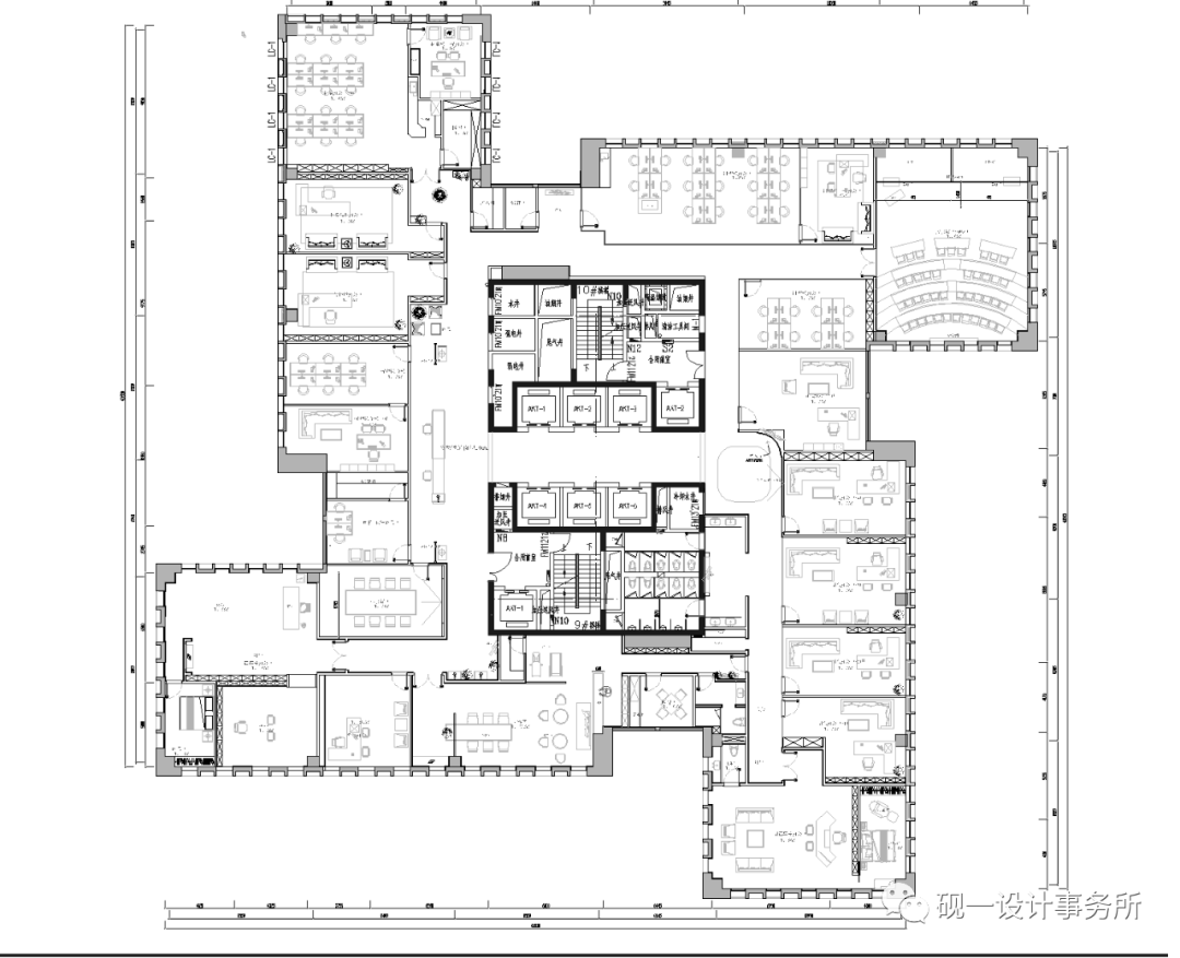
腾骅控股总部办公室,杭州 /TJD/杭州砚一设计事务所
/东方美学的现代办公室/
腾骅控股是一家总部位于钱江世纪板块并已走向世界为准则的多元化公司。创始人找到我们,希望打造一个有思想,具有时代精神的办公空间,同时也要求高效、简洁,充满人文关怀。
Teng Hua holding company is a trading company located in xiaoshan. Find our founder, hope make a thoughtful for more than one hundred employees, with a spirit of The Times。
设计背后的理性思考 Rational thinking behind design
∇
前期我们花大量的时间对这个空间的特质进行分析和讨论,决定用我们一贯主张的“东方美学的当代表达”为空间美学体验的设计内核。
空间在客观上要满足贸易公司的庄重感,在主观要呈现出企业文化底蕴及整个公司的企业文化;从主创间的碰撞到与甲方的探讨,再回到桌上大量的草案,逐步确定了这个空间的美学轮廓。
In the early stage, we spent a lot of time to analyze and discuss the characteristics of this space, and decided to use “The contemporary expression of Oriental Aesthetics”as the core of the design.
The space should objectively satisfy the solemn sense of the trading company, and subjectively present the inside information of the corporate culture and the corporate culture of the company as a whole; from the collision between the creators to the discussion with the Party A, and then back to the large number of drafts on the table, gradually determine the aesthetic outline of this space.

∇
重新设定空间与人的关系
Reset the relationship between space and people

∇ 轴线:员工动线


∇ 轴线:公共区域



∇
过道墙面统一采用深色木饰面(泰国古橡)作为空间主色调,踢脚线部分,设计为古铜色不锈钢暗藏踢脚。
Dark wood veneer (Thai oak) is used as the main color of the corridor wall. The submitted part is designed for stainless steel hidden kick feet.


∇ 轴线:会客区域
会客区域整体色调偏暗,采用无主灯设计,空间以“茶”的作为主题元素,休闲放松的会客空间与明快的办公空间形成对比,又与董事长办公室的风格设计相统一。
The overall tone of the reception area is dark, with no main light design. The space takes "tea" as the theme element. The leisure and relaxed reception space forms a contrast with the bright office space, and is unified with the style design of the chairman's office.
∇会客一角



∇ 轴线:董事长办公室
洽谈空间


∇ 轴线:董事长办公室
办公空间



∇ 轴线:副董事长办公室





项目名称:腾骅控股
办公室地点:杭州
总建筑面积:1700m²
竣工时间:2021年
设计单位:TJ建筑空间/砚一设计事务所
施工单位:杭州砚一装饰工程有限公司
室内设计团队:彭超豪Terry 巨志鹏
摄影师:Amin
Project Name: Tenghua Holding Office
Location: Hangzhou
Total construction area: 1700m²
Completion date: 2021
Design: TJ Space Design Institute
Interior decorator: Peng Chaohao, Ju Zhipeng
Photographer: Amin