砚一设计事务所

联系我们

CONTACT US

杭州砚一设计事务所(杭州砚一装饰工程有限公司)原班人马创立于2012年,创立之初是以商业空间施工为核心业务板块,专业从事办公、餐饮、酒店、会所等商业空间施工服务。施工管理中采取“内管管理制度”人工、材料、强弱电、暖通由公司内部统一消化及分配,以“谢绝外包”在业内赢得良好口碑,服务施工过多家上市公司及企业单位。

全国免费热线

19975394675

电话:19975394675

传真:19975394675

邮箱:583709343@qq.com

地址:杭州市萧山区钱江世纪城博地中心B座30层

填写您要留言的信息

  • 效果图
  • 平面图
  • 实景图

从业经验:

设计师详情

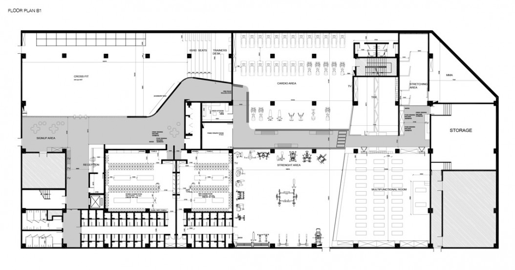
戎马健身会所

项目位置:

浙江

建筑面积:

2500平方米

设计风格:

现代工业风格

完结时间:

2020年10月

【设计理念】

分享:
返回列表
19975394675